Velika scena

Velika scena | Studio 99 | Svetlo | Ton | Površina pozorišta

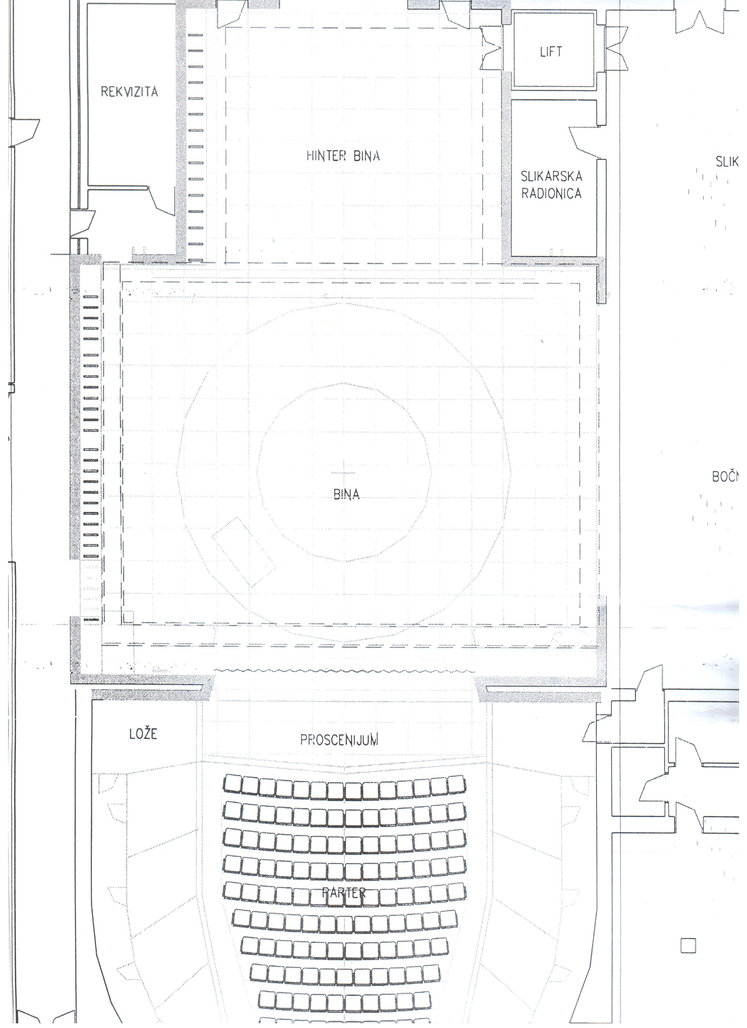
OSNOVNI ELEMENTI SCENE

  1. širina scene (bez bočne scene) 15,50 m
  2. dubina do prednje zavese 12,00 m
  3. širina proscenijuma 9,00 m
  4. dubina proscenijuma 1,20 m
    - sa pokrivenom rupom za orkestar 3,60 m
  5. visina scene 14,00 m
  6. korisna širina cugova
    • maksimalna, sa produžecima 14,00 m
    • bez produžetaka 12,00 m
  7. širina portala 8,00 m
  8. visina portala
    • minimalna 4,50 m
    • maksimalana 6,50 m
  9. visina rikvanda 14,00 m
    širina rikvanda 12,00 m
  10. broj cugova
    ručni, proscenijum 3 kom.
    pozornica 38 kom.
    bočni cugovi 6 kom.
    električni cugovi 7 kom.
  11. nosivost cugova
    ručni cugovi - 150 kg
    bočni ručni cugovi -  75 kg
    električni cugovi - 750 kg
  12. rotacija na električni pogon sa kočnicom,
    prečnik 10,00 m
  13. radne galerije (visina od poda scene)
    8,00 m
    12,00 m
  14. radne polugalerije (visina od poda scene)
    + 2,00 m
    + 4,00 m
    + 6,00 m
    + 8,00 m
    + 12,00 m

HINTER BINA - OSNOVNI ELEMENTI

  1. širina scene 8,00 m
  2. dubina scene 7,50 m
  3. visina scene 6,50 m
  4. korisna širina cugova 8,00 m
  5. ručni cugovi 14 kom.
  6. nosivost ručnih cugova 150 kg
  7. zvučna zavesa sa električnim pogonom
    širina 10,50 m
    visina 7,00 m
    težina 5000 kg
  8. radne platforme (visina od poda scene) + 4,00 m

BOČNA SCENA - OSNOVNI ELEMENTI

  1. širina 7,50 m
  2. dubina 9,20 m
  3. visina 6,50 m
  4. broj cugova 4 kom.
  5. nosivost cugova 150 kg
  6. zvučna zavesa sa električnim pogonom
    širina 8,00 m
    visina 7,00 m
    težina 5000 kg

KAPACITET GLEDALIŠTA

300 mesta